- 2024.02.16
- ZEH水準省エネ住宅♪
- 最寄り駅
- 四ツ木駅徒歩11分
- 住所
- 葛飾区四つ木4丁目
- 価格
- 5,290万円
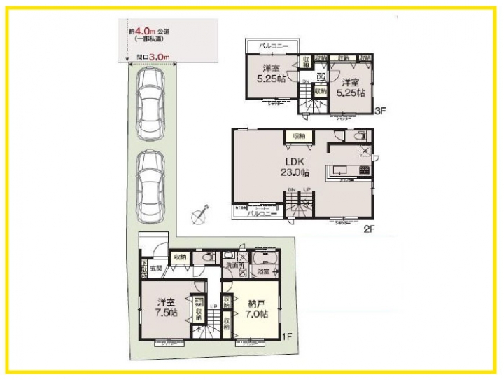
- 間取り
- 4LDK
かつLab(カツラボ)は葛飾の情報サイトです。
かつLab(カツラボ)は葛飾の情報サイトです。
葛飾区の物件情報を発信しております!
戸建て、マンション、土地、収益物件など新築から中古物件まで幅広くご用意!
さらに!葛飾区のイベント、観光スポット、公園やお店といった
暮らしのプラスアルファ(+α)となる情報もお届けしております。
土地面積
108.72㎡
築年数
令和5年10月
建物面積
116.58㎡
用途地域
準工業地域
建ぺい率
60%
容積率
200%
土地権利
所有権
接道
北西側約4m公道



おすすめポイント
四つ木4丁目新築住宅 4LDK車庫2台分付 ZEH水準省エネ住宅です 建物完成済み♪
土地面積約32.89坪 建物面積約35.26坪 LDKはなんと約23.0帖あります バルコニー2カ所
即日入居可能です よつぎ小学校徒歩2分 四ツ木中学校徒歩2分 四つ木保育園徒歩5分
オーケー徒歩4分 セブンイレブン徒歩2分 四つ木郵便局徒歩3分等